Phoenix NEO

Magnetic Drum Conveyor

Powerful magnetic drum conveyor MMS
Super strong magnetic drum conveyor M10
Powerful magnetic drum conveyor HMS
#30 Super strong magnetic drum conveyor M10

Microfiltration conveyor equipped with powerful magnetic drum.
Optimum for cutting chip processing of castings and iron.

Features

Coolant

Water soluble Oil-based

Category

Magnetic material

Processing Details

Cutting

Work Material

FC/FCD Steel

Chip Shape

Sandy Cottony Granular Needle-shaped Small curl-shaped (50 mm or less)

Grinding Chip Size

Machine Tool

Machining center #30 Machining center Broaching machine Gear cutting machine Gun drill machine Cutting specialized machine Washing machine

Product Introduction Video

Features by model

MMS

M10

HMS

M10(#30)

Mechanism Diagram 1

Mechanism

MMS・M10・M10(#30)

Mechanism Diagram 1
PXK Sludge Distribution

MMS

PXH Sludge Distribution

M10

  1. The dirty liquid flows onto the conveyor, and 80 to 90% of chips settle on the bottom of the conveyor.
  2. 10 to 20% of chips that do not settle are captured by the magnetic drum.The captured chips are demagnetized at the part of the magnetic drum that is not magnetic, and settle on the bottom of the conveyor.
  3. The dirty liquid passes through the magnetic drum to become a clean liquid, which is supplied to the clean tank.
  4. The settled chips are conveyed by the scraper and discharged to the outside of the main body.

HMS

PXK Sludge Distribution
PXH Sludge Distribution
  1. The dirty liquid flows onto the conveyor.
  2. Chips are captured by the magnet installed on the bottom of the conveyor.
  3. Chips captured by the magnet on the bottom of the conveyor are conveyed by the scraper.
  4. Chips are temporarily stored in the conveyor outlet, drained, and then discharged.

Specifications

MMS・M10

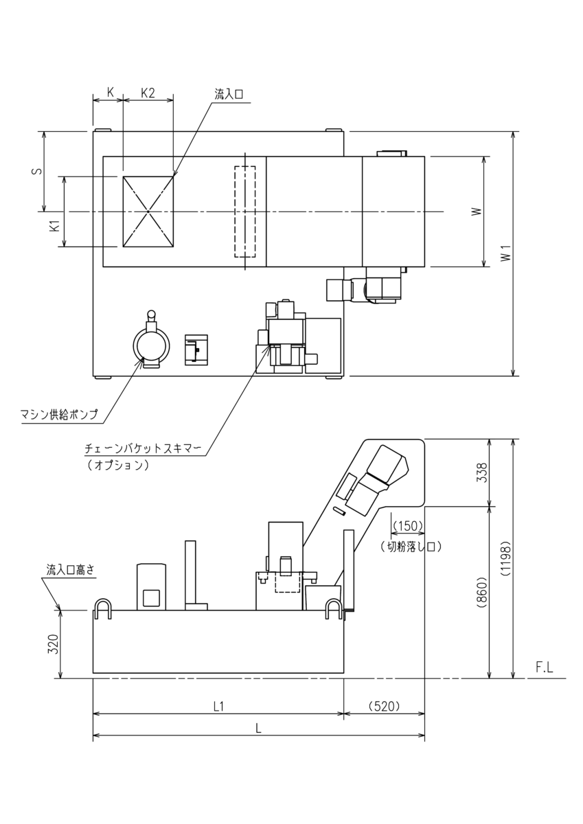
Dimensional drawing

PXK Sludge Distribution

Dimension table

PXH Sludge Distribution

HMS

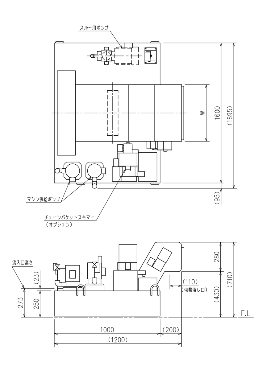
Dimensional drawing

PXK Sludge Distribution

Dimension table

PXH Sludge Distribution

M10(♯30)

Dimensional drawing

PXK Sludge Distribution

Dimension table

PXH Sludge Distribution

Filtration accuracy

* The filtration accuracy is based on the results of our experiments, and does not imply that this level of accuracy is guaranteed.

Particle size distribution

PXK Sludge Distribution

MMS

PXH Sludge Distribution

M10

PXN Sludge Distribution

HMS

Machine tool: Inner diameter grinding machine Coolant: Water soluble Processing flow rate: 60 L/min
Chip material: Steel

Processing flow rate

Water soluble

* For details, please check the product dimensions.
* The product weight varies depending on the specifications, options, etc.

Paint color

Silver gray (Munsell No. N-8.0)

*Please contact us for specific colors.

Drive motor

Options

*Please contact us for details.

Model code explanation

M10・MMS

Comparison with Old Models Table

HMS

Comparison with Old Models Table

Product Photos

PXK Sludge Distribution

MMS/M10 Option (CBS)

PXH Sludge Distribution

HMS

PXN Sludge Distribution

M10 (#30) Option (CBS)

Chip discharge image MMS・M10・M10(#30)

PXK Sludge Distribution

MMS

PXH Sludge Distribution

M10

PXN Sludge Distribution

HMS

*The image is for illustrative purposes only. The specifications may differ from the actual product.


*Filtration accuracy is based on our own experiments, and we do not guarantee effectiveness.
*Specifications and dimensions are subject to change without notice.
*Please consult us if you are using oil-based products.
*Please contact us for custom-made products other than standard products.